Airstream Dimensions . How is the travel trailer exterior length measured? Airstream Support View 2019 Airstream Nest (Travel Trailer) RVs For Sale Gallery What size Airstream trailer? One of the biggest decisions a new Airstream trailer buyer has to make is the length
8 Amazing Airstream Floor Plans We Are Airstream Superstore from www.weareairstreamsuperstore.com
2021 Airstream Flying Cloud 25FB Specs and brochures Your vehicle may differ due to variations in manufacture and equipment
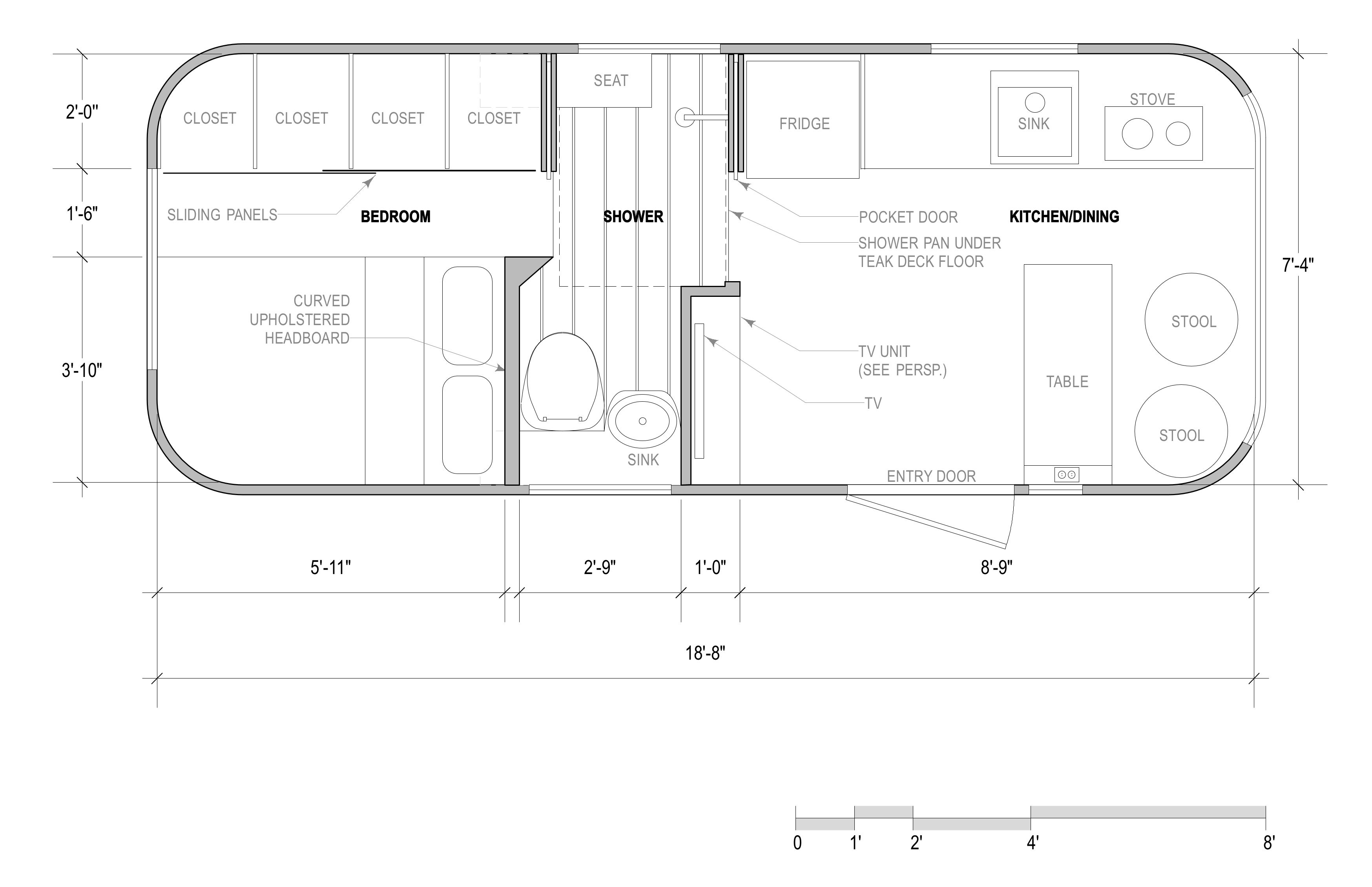
8 Amazing Airstream Floor Plans We Are Airstream Superstore Please check with your Airstream dealer for complete details. Please check with your Airstream dealer for complete details. The mid-size Airstream models include the Flying Cloud, International, and Globetrotter
Source: www.pinterest.com airstream layout size Options for SWIFT STREAm work with 23 Size , For models without bumpers, the travel trailers are measured to their furthest exterior rear points. 2021 Airstream Flying Cloud 25FB Specs and brochures
Source: thefunoutdoors.com How Wide is an Airstream? The Fun Outdoors , All three models measure between 23-30 feet in length and have a GVWR of 7,475 pounds Your Search; Back to Specs Guide; Type: Travel Trailer;
Source: experientialvehicles.com Airstream Mobile Bar Dimensions Marketing Trailers & Vehicles , Focusing on four important aspects, design, quality, authenticity and freedom, Airstream gives customers the ability to have the world just outside of their front door. All Airstream Travel Trailer exterior lengths are measured from the center of the hitch to the end of the rear bumper
Source: www.pinterest.com Floor Plans Basecamp Travel Trailers Airstream Travel trailer , The mid-size Airstream models include the Flying Cloud, International, and Globetrotter Specifications, dimensions, measurements, weights, capacities and other numbers on this website are approximates based upon design and engineering drawings, prototypes and laboratory tests
Source: www.animalia-life.club Airstream Floor Plans , The best tow vehicle for a 30-foot Airstream in this level or one of the shorter versions must focus on pulling power Note: The Nest Airstream floor plan was discontinued in late 2020, but you can still find used models for sale on RV marketplaces
Source: www.pinterest.com airstream blueprints Google Search Airstream, Airstream remodel , Note: The Nest Airstream floor plan was discontinued in late 2020, but you can still find used models for sale on RV marketplaces The next Airstream trailer we will be looking at is the Nest.This trailer is the same size as the Base Camp at just 16 feet, and it has many of the same features.
Source: wsdg.com Lower Eastside Girls Club WGRL Airstream Studio WSDG , Your vehicle may differ due to variations in manufacture and equipment Please check with your Airstream dealer for complete details.
Source: howto.airstreamlife.com What size Airstream trailer? , Specifications, dimensions, measurements, weights, capacities and other numbers on this website are approximates based upon design and engineering drawings, prototypes and laboratory tests The mid-size Airstream models include the Flying Cloud, International, and Globetrotter
Source: experientialvehicles.com airstream concession dimensions Marketing Trailers & Vehicles , All three models measure between 23-30 feet in length and have a GVWR of 7,475 pounds Airstream RVs Spec Guide - Find Complete Specifications and Brochures for these Airstream RVs Airstream does not just sell a product, but rather a way of life
Source: www.coroflot.com Airstream Trailer ReDesign by Olena Ivanina at , View 2019 Airstream Nest (Travel Trailer) RVs For Sale Gallery What size Airstream trailer? One of the biggest decisions a new Airstream trailer buyer has to make is the length
Source: newatlas.com Airstream familysizes its small Basecamp adventure camper , The best tow vehicle for a 30-foot Airstream in this level or one of the shorter versions must focus on pulling power The next Airstream trailer we will be looking at is the Nest.This trailer is the same size as the Base Camp at just 16 feet, and it has many of the same features.
Source: saagocvzb.pages.dev 2021 Airstream Basecamp 16X Specs / Find Complete Specifications For , Click on images to see them enlarged in a slideshow format Short trailers are cute, easy to tow, fit into more campsites, can be towed by a wider range of vehicles, and cost less.
Source: alquilercastilloshinchables.info 8 Photos Airstream Floor Plans By Year And Description Alqu Blog , View 2019 Airstream Nest (Travel Trailer) RVs For Sale Gallery Short trailers are cute, easy to tow, fit into more campsites, can be towed by a wider range of vehicles, and cost less.
Source: www.weareairstreamsuperstore.com 8 Amazing Airstream Floor Plans We Are Airstream Superstore , What size Airstream trailer? One of the biggest decisions a new Airstream trailer buyer has to make is the length Click on images to see them enlarged in a slideshow format
Source: experientialvehicles.com airstream concession dimensions 2 Marketing Trailers & Vehicles , Your vehicle may differ due to variations in manufacture and equipment Also search nationwide inventory for Flying Cloud 25FB for sale.
8 Amazing Airstream Floor Plans We Are Airstream Superstore . Also search nationwide inventory for Flying Cloud 25FB for sale. What size Airstream trailer? One of the biggest decisions a new Airstream trailer buyer has to make is the length
2008 Airstream Basecamp Standard RV Guide . Focusing on four important aspects, design, quality, authenticity and freedom, Airstream gives customers the ability to have the world just outside of their front door. For models without bumpers, the travel trailers are measured to their furthest exterior rear points.